新聞資訊
News article
光解設備處理有機廢氣技能原理:
一、本產品使用特制的高能高臭氧UV紫外線光束照耀惡臭氣體,改動惡臭氣體如:氨、三甲胺、硫化氫、甲硫氫、甲硫醇、甲硫醚、二甲二硫、二硫化碳和苯乙烯,硫化物H2S、VOC類,苯、甲苯、二甲苯的分子鏈結構,使有機或無機高分子惡臭化合物分子鏈,在高能紫外線光束照耀下,降解轉變成低分子化合物,如CO2、H2O等。
二、使用高能高臭氧UV紫外線光束分化空氣中的氧分子發生游離氧,即活性氧,因游離氧所攜正負電子不平衡所以需與氧分子結合,進而發生臭氧。
UV+O2→O-+O*(活性氧)O+O2→O3(臭氧),眾所周知臭氧對有機物具有極強的氧化效果,對惡臭氣體及其它刺激性異味有馬到成功的清除效果。
三、惡臭氣體使用排風設備輸入到本凈化設備后,凈化設備運用高能UV紫外線光束及臭氧對惡臭氣體進行協同分化氧化反響,使惡臭氣體物質其降解轉化成低分子化合物、水和二氧化碳,再經過排風管道排出室外。
四、使用高能UV光束裂解惡臭氣體中細菌的分子鍵,損壞細菌的核酸(DNA),再經過臭氧進行氧化反響,到達脫臭及殺滅細菌的目的.
THY-EQ系列惡臭氣體UV高效光解廢氣凈化設備的功能優勢
㈠、高效除惡臭:能高效去除揮發性有機物(VOC)、無機物、硫化氫、氨氣、硫醇類等首要污染物,以及各種惡臭味,脫臭效率高可達99%以上,脫臭效果大大超越國家1993年公布的惡臭污染物排放規范(GB14554-93)和1996年公布的《大氣污染物歸納排放規范》(GB16297-1996)。
㈡、無需增加任何物質:只需要設置相應的排風管道和排風動力,使惡臭/工業廢氣經過本設備進行脫臭分化凈化,無需增加任何物質參加化學反響。
㈢、適應性強:THY-系列工業廢氣(工業廢氣)UV高效光解廢氣凈化設備可適應高濃度,大氣量,不同工業廢氣物質的脫臭、凈化處理,可每天24小時接連作業,運轉安穩牢靠。
㈣、運轉成本低:SHGJ-系列工業廢氣(工業廢氣)UV高效光解廢氣凈化設備無任何機械動作,無噪音,無需專人辦理和日常保護,只需作定期查看,本設備能耗低,設備風阻極低<300pa,可節省很多排風動力能耗。
㈤、設備占地面積小,自重輕:適合于布置緊湊、場所狹小等特別條件,設備占地面積<1平方米/處理10000m3/h風量。
㈥、優質進口資料制作:防火、防腐蝕功能高,設備功能安全安穩,選用不銹鋼原料,設備使用壽命在十年以上。
㈦、環保高科技專利產品:選用國際上先進技能理念,經過專家及我公司工程技能人員長時間重復的實驗,開發研制出的,具有徹底自主知識產權的高科技環保凈化產品可分化工業廢氣中有毒有害物質,并能到達完美的脫臭、凈化效果,經分化后的工業廢氣,可徹底到達無害化排放,不發生二次污染,一起到達高效消毒滅菌的效果。
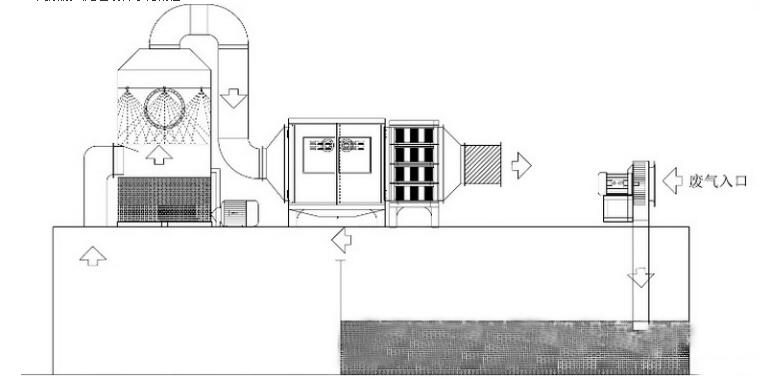
UV光解廢氣處理設備凈化流程:

0577-88855108
